Appartamento in vendita a Montichiari
Quadrilocale al primo piano
329.000€
Nuovo
Stato
A4
Classe energetica
4
Locali
2
Bagni
143
m²
Si
Garage
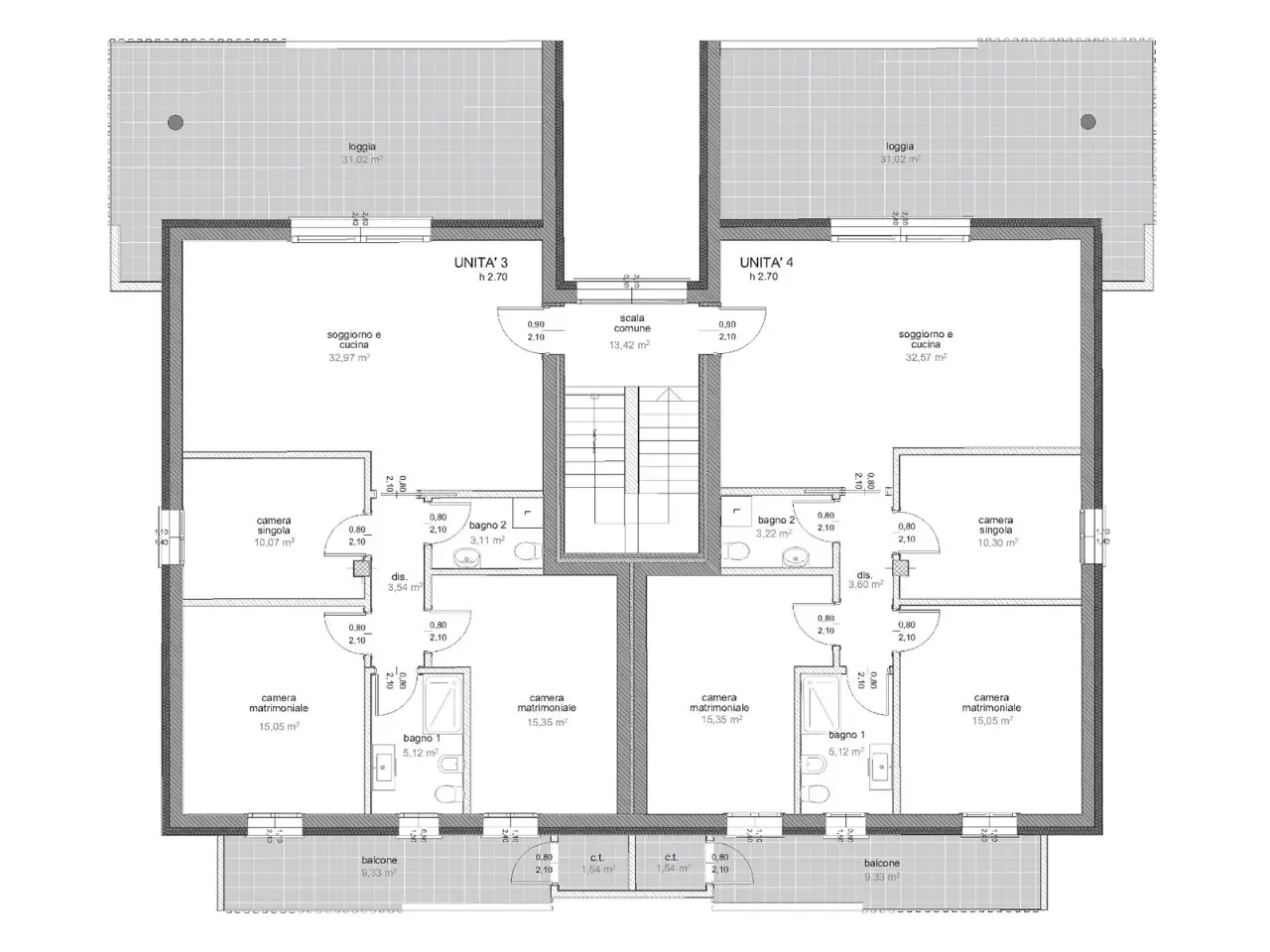
Mor Costruzioni propone in vendita Appartamento da 143 mq a Montichiari. L’abitazione di 1 piano dispone di 4 locali e 2 bagno/i. L’immobile è Nuovo in classe energetica A4 e proposto in vendita a 329.000€. Per maggiori informazioni vi invitiamo a contattarci tramite WhatsApp al numero 324 9827242 o all’indirizzo email info@mor-costruzioni.it
Galleria immagini
Descrizione
A Montichiari, in elegante contesto residenziale a pochi passi dal centro, proponiamo in vendita moderno quadrilocale di nuova costruzione situato al primo piano e realizzato in classe energetica A4, ideale per chi desidera comfort, efficienza e qualità abitativa. L’immobile si sviluppa su una superficie commerciale di circa 143 mq e offre ambienti ampi, luminosi e ben distribuiti. La zona giorno, caratterizzata da un living con cucina a vista, si affaccia direttamente su un ampio terrazzo coperto di oltre 30 mq, perfetto per pranzi all’aperto e momenti di relax. La zona notte comprende tre camere da letto, tra cui una matrimoniale con balcone e predisposizione per bagno privato, oltre a due ulteriori camere anch’esse servite da balcone, e due bagni completi con spazio dedicato alla lavanderia. Completa la proprietà un box auto doppio al piano interrato con apertura motorizzata. L’abitazione è completamente gas-free e dotata di impianto fotovoltaico da 3 kW, pompa di calore, riscaldamento a pavimento e climatizzazione caldo/freddo, garantendo elevate prestazioni energetiche e consumi ridotti. Predisposizione per domotica, videocitofono e tapparelle elettriche rendono questa soluzione ideale per chi cerca una casa moderna e tecnologica, con consegna prevista primavera 2027.
Altre caratteristiche
-
VideoCitofono
-
Porta blindata
-
Esposizione esterna
-
Armadio a muro
-
Balcone
-
Terrazza
-
Infissi esterni in doppio vetro / PVC
-
Impianto fotovoltaico
-
Tapparelle in alluminio motorizzate
Hai bisogno di informazioni su questa Appartamento in vendita?
Compila il modulo e ti ricontatteremo per fornirti tutte le informazioni di cui hai bisogno.



















